The Well Recreational & Wellness center logo
  • The 105,000-square-foot Recreation and Wellness campus will include a gymnasium, indoor running track, fitness and weight room, aerobic dance and spin studios, classrooms, a 240-person community events room, commercial kitchen, child watch area, outdoor patio, and an aquatic facility that includes a lap pool, recreation activity pool, water slide, and spa.

  • Nearly 25,000 square feet of space within The Well will be dedicated to an integrated medical health and wellness center managed by The Ohio State University Wexner Medical Center. The center will offer rehabilitation and physical therapy.

  • The Well, located at Scioto Darby and Alton Darby Creek roads, is expected to open in mid-2025.

Check Out Our Progress and Construction Timelapse

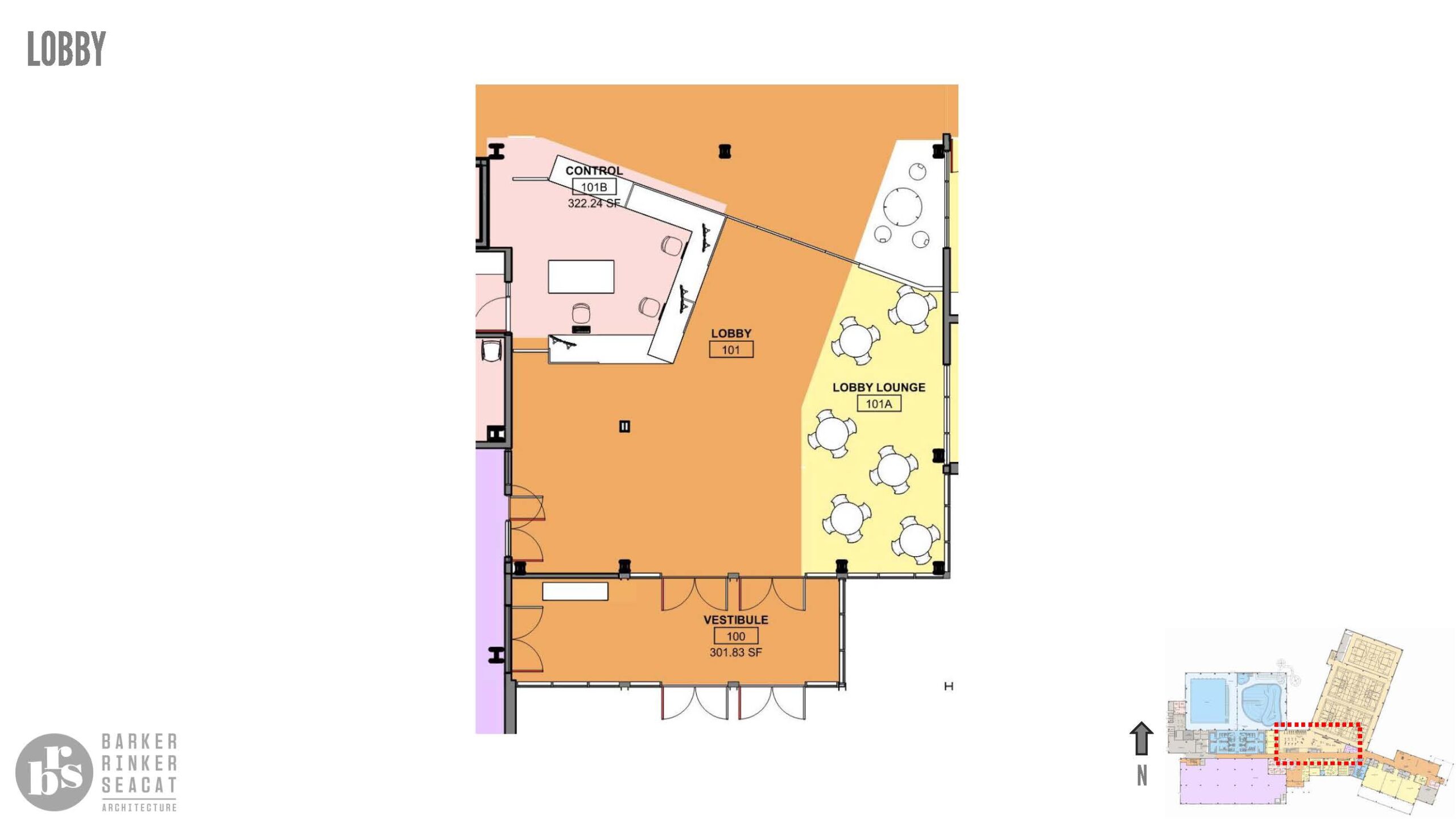
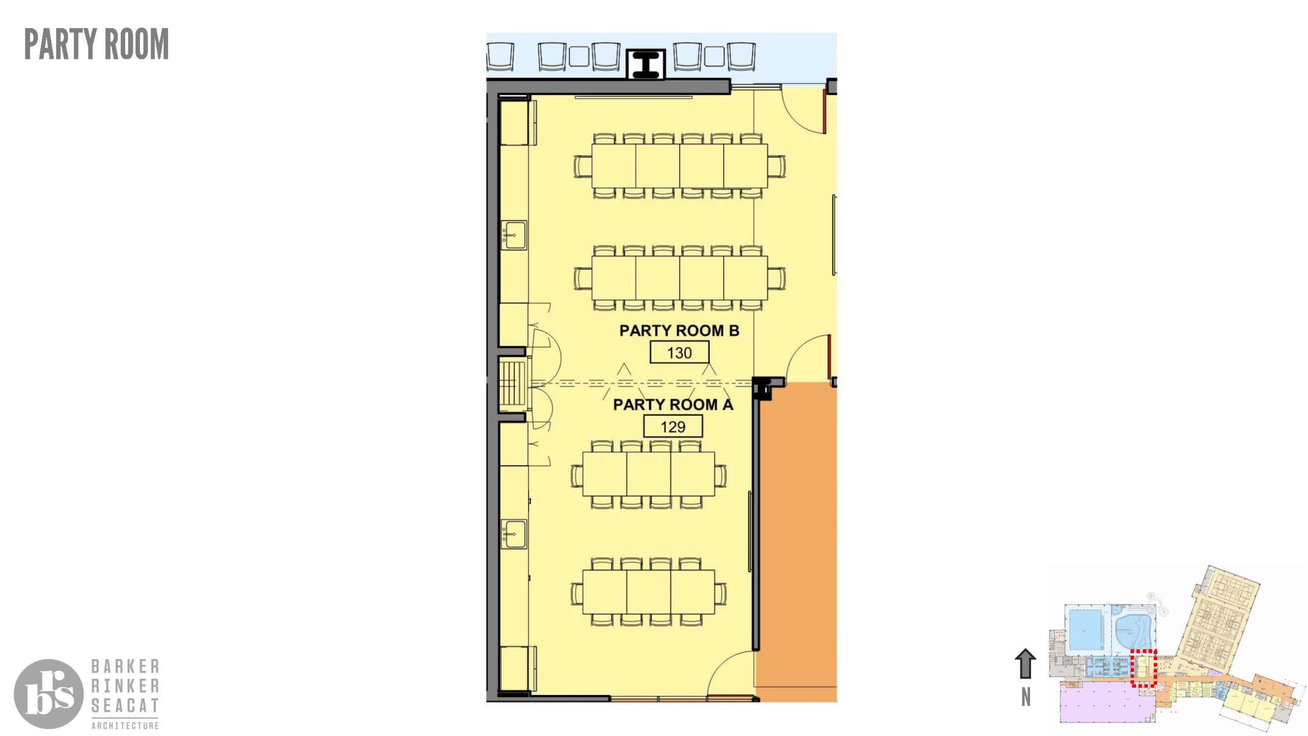
Renderings and Blueprints of The Well (Subject To Change)

The Well Amenities 

SPACE

SIZE IN SQUARE FEET

Administration2,303
Lobby and Support Spaces4,125
Locker Spaces772
Universal Changing Rooms772
Child Watch1,065
Game Room1,609
Green Room / Community Garden300
80 Person Classroom2,194
Party Room / Classroom / Wet Craft Room936
Outdoor Patio / Gathering Space1,316
240 Person Community Events Room3,808
Commercial Kitchen1,732
Gymnasium 5 (HS or 2 Middle School Courts)13,478

SPACE

SIZE IN SQUARE FEET

Multi-Use Activity Space 15,488
Elevated Walking Track (12 Laps Per Mile)5,500
6,000 SF Fitness & Weight Room6,480
30-35 Person Aerobics / Dance Studio2,340
30-40 Person Spin Studio / Multi-Use Classroom2,340
Aquatics Support866
25-Meter x 25-Yard Pool17,683
3,600 Recreation Activity Pool9,366
Water Slide 
Small Spa (15-Person Whirlpool)332
Photovoltaic System 
Solar Hot Water System 

The Timeline

Current phase: Construction

Recreation and Wellness Center Timeline

Construction Updates

  • The City of Hilliard broke ground on The Well in April 2023 and the first walls were erected in October.

  • The Cosgray Road extension, which will provide access to The Well, is currently under construction and is expected to be completed in 2025.

  • Part of this project includes a stream, Clover Groff Run, which flows through the property. The stream’s floodplain area is being widened to add more natural plants and meander the channel to slow down water runoff to reduce the erosion of the soil. Restoring Clover Groff Run will improve water quality in the Darby Creek Watershed.

  • An outline for the athletic fields and new turf that will accompany the recreation and wellness campus can now be seen on the construction site. The new recreation and wellness campus will include 20 grass fields plus these two synthetic turf fields.

  • Hilliard-based Advanced Drainage Solutions (ADS) is installing rows of StormTech green infrastructure chambers underneath the parking lot of the athletic complex. This alternative system to conventional stormwater solutions mimics natural hydrology (water movement and distribution) by trapping pollutants the moment rain enters the drain until it’s safely returned to its natural environment.

  • The Well is expected to open in summer 2025.


More To Watch

Background Information

On Nov. 2, 2021, Hilliard residents approved Issue 22, an additional 0.5% municipal income tax, paid by individuals who work in the City of Hilliard corporate boundaries (regardless of whether they live here).

The additional revenue will be dedicated for recreation and parks, including design, construction, and operation of a new community center comparable to those in neighboring communities.

In preparing to place Issue 22 on the ballot, the City performed resident surveys and focus groups to identify what kinds of recreation and parks amenities our community desires most. This research included a regional market assessment that examine the types of recreational facilities, programs, and services needed in Hilliard and nearby communities.

The results of the survey, market study, feasibility report, and cost estimates for a possible community center were presented to City Council this spring. In June, RPAC recommended that Hilliard City Council place an initiative on the Nov. 2 ballot.

A boy diving into water
A boy blowing bubbles

Hilliard is happening! Find out what’s going on with our weekly newsletter.

Click the ‘x’ to opt out.